Geografías construidas: Paulo Mendes da Rocha
Siete maquetas en sección para la muestra retrospectiva Geografías construidas: Paulo Mendes da Rocha.







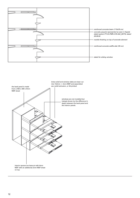
Como parte del seminario Architecture, Nature, and the Americas: The Work of Paulo Mendes da Rocha impartido por Vanessa Grossman en el Berlage, participamos en la construcción de siete maquetas en sección para la muestra retrospectiva Geografías construidas: Paulo Mendes da Rocha, curada por Jean-Louis Cohen y Vanessa Grossman, y expuesta en la Casa da Arquitectura de Matosinhos, en Portugal.
Más info aquí.
En colaboración con The Berlage (Chaomin Chen, Eliott Moreau, Felix Verheyden, Han Yang, Kelly Olinger, Lenneke Slangen, Maria Stergiou, Nicolaos Charalambous, Nien-Heng Yang, Sneha Gireesh, Thomas Gkikas, Ujal Gorchu, Yuhe Tan, Jesse Verdoes).
Maquetas: MDF con pintura acrílica y polvo de marga
Ubicación: Casa da Arquitectura, Matosinhos (PT)
Año: 2023
Fotos: Jesse Verdoes, Nien-Heng Yang
Más info aquí.
En colaboración con The Berlage (Chaomin Chen, Eliott Moreau, Felix Verheyden, Han Yang, Kelly Olinger, Lenneke Slangen, Maria Stergiou, Nicolaos Charalambous, Nien-Heng Yang, Sneha Gireesh, Thomas Gkikas, Ujal Gorchu, Yuhe Tan, Jesse Verdoes).
Maquetas: MDF con pintura acrílica y polvo de marga
Ubicación: Casa da Arquitectura, Matosinhos (PT)
Año: 2023
Fotos: Jesse Verdoes, Nien-Heng Yang
Dibujos





Fotos de proceso de construcción de maquetas





Fotos de montaje



